


〒853-0501
長崎県五島市玉之浦町荒川274-4
Tel : 080-2789-4846(10:00から17:00)
E-mail : info@nedokoro-nora.com
定休日:不定休
※お休みのお知らせはノラ日記から。




中学生以上は大人料金です。
小学生未満のお子様は親御さんと添い寝となり、無料です。お布団ご利用の場合、小学生料金となります。
ハイシーズンは年末年始、GW、お盆です。
詳細はノラの宿泊予約カレンダーをご覧ください。
長期利用割引あり。お問い合わせください。
基本、シーツ類の交換サービスはございません。
無料アメニティのご用意はありません。
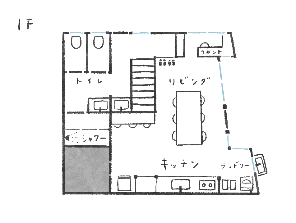
2階が寝室です。
階段をあがると左右にお部屋があります。
海側は12畳、山側は9畳の和室にお布団をご用意しています。
それぞれのお部屋は腰壁で仕切られ、ゆるやかにつながっています。
窓からは海が見えます。
ハンモックに揺られ、風に感じながら、
お昼寝や本を読んだり、のんびりお過ごしください。
洗濯干し場もあります。
(個室はございません)
お布団一式
ハンモック
全身鏡
ハンガー
物干し竿
貴重品ロッカー
キッチンはいつでも自由に使うことができます。
荒川の海で釣った魚をさばいて刺身にしたり、新鮮で美味しい島の食材を調理して、食事をお楽しみいただけます。
食材のお買い物は、福江の街で揃えてくるのがおすすめです。
ノラではお米(1合100円)をご用意しています。
お魚を捌く用のシンク、出刃包丁、砥石、バーナーをご用意しています。
コンロ、電子レンジ、トースター、炊飯器、食器各種、調理器具各種、浄水器、ホットプレート
塩、砂糖、醤油、みりん、みそ、酢、油、オリーブオイル
設備・調味料は、ご自由にお使いください。
中学生以上は大人料金です。
小学生未満のお子様は親御さんと添い寝となり、無料です。お布団ご利用の場合、小学生料金となります。
ハイシーズンは年末年始、GW、お盆です。
詳細はノラの宿泊予約カレンダーをご覧ください。
長期利用割引あり。お問い合わせください。
基本、シーツ類の交換サービスはございません。
無料アメニティのご用意はありません。
2階が寝室です。
階段をあがると左右にお部屋があります。
海側は12畳、山側は9畳の和室に
お布団をご用意しています。
それぞれのお部屋は腰壁で仕切られ、ゆるやかにつながっています。
窓からは海が見えます。
ハンモックに揺られ、風に感じながら、
お昼寝や本を読んだり、のんびりお過ごしください。
洗濯干し場もあります。
(個室はございません)
お布団一式
ハンモック
全身鏡
ハンガー
物干し竿
貴重品ロッカー
キッチンはいつでも自由に使うことができます。
荒川の海で釣った魚をさばいて刺身にしたり、
新鮮で美味しい島の食材を調理して、食事をお楽しみいただけます。
食材のお買い物は、福江の街で揃えてくるのがおすすめです。
ノラではお米(1合100円)をご用意しています。
お魚を捌く用のシンク、出刃包丁、砥石、バーナーをご用意しています。
コンロ、電子レンジ、トースター、炊飯器、食器各種、調理器具各種、浄水器、ホットプレート
塩、砂糖、醤油、みりん、みそ、酢、油、オリーブオイル
設備・調味料は、ご自由にお使いください。

各都市から福岡空港へ就航しているLCCが充実しているので、結果的に安く済むコース(ノラ調べ)。早めに長崎に着けると、フェリーまでの時間に長崎観光もできます。晴れている日は、フェリーの甲板に出て、船旅を満喫しながらお越しください。トビウオが飛んでる姿が見られるかも。

各都市から福岡を経由して、飛行機で福江島までくるコース。朝の便で東京を出発したら、昼過ぎには福江島に到着。午後から観光へ出かけられます。お休みが短い人におすすめ。
※飛行機の価格は時期、便によって変動あり

空港に着いたら、地下鉄で博多の街へ。出発までの時間に博多グルメを堪能。街から港まではバスかタクシーで移動。博多港と福江港を結ぶ太古丸の出発は23:45。港の目の前には温泉施設があるので、乗船前に温泉でさっぱりするのもおすすめ。一晩、船で過ごし、五島列島の島々を経由して福江島に到着。島旅情緒が味わえます。
※ 金額、便数は時期によって変動します。
天候による運行状況はこちら(五島交通ナビ)を参考に。

自由に移動ができて、観光にもつかえるレンタカーが便利です。「レンタカー情報」よりご確認ください。 荒川に着いたら、車は港の駐車場(無料)に停めてお越しください。

所要時間40分
港で1日乗車券が購入できます。本数が少ないので注意。時刻表はこちら。
〒853-0501
長崎県五島市玉之浦町荒川274-4
Tel : 080-2789-4846(10:00から17:00)
E-mail : info@nedokoro-nora.com
定休日:不定休
※お休みのお知らせはノラ日記から。